厨房内の動線を可視化し

効率的な調理現場を実現

厨房設計ラボ株式会社スマートプロット
から新たなご提案

近年、飲食業界や食品施設では、食の安全性確保と業務効率化の両立が求められています。

HACCPに代表される衛生管理の高度化に伴い、厨房内の作業動線や調理工程を正確に把握・管理することは不可欠となりました。

しかし、従来の厨房運営は経験や勘に依存する部分が多く、作業効率の低下やヒューマンエラー、衛生リスクの発生といった課題を抱えていました。

また、人手不足が深刻化する中で、少人数でも効率的かつ安全に運営できる厨房体制が必要とされています。

そのためには、現場の作業状況を客観的に把握し、最適な配置や動線を設計する仕組みが求められています。

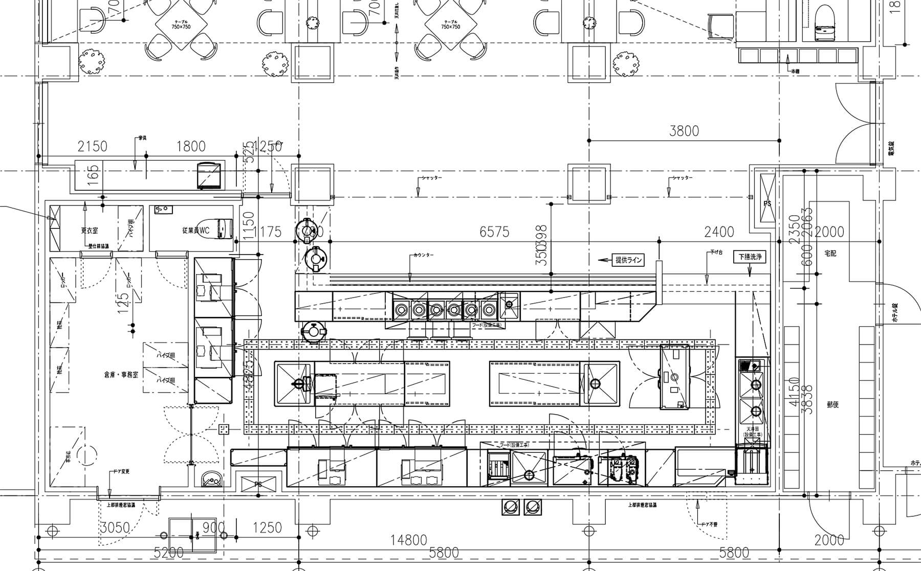
こうした背景から、厨房内の作業動線・設備利用・スタッフの稼働状況を「見える化」するシステムの開発を進めています。

可視化によって、業務改善や教育支援、さらには衛生管理体制の強化につなげることを目指しています。

厨房の動線を可視化することは

ブランディングに直結する

POINT 1

厨房の情報を可視化し分析

AIカメラ、音声記録、分析システムを用いて安全・安心・効率的な厨房への改善策をご提案

厨房の業務の効率化

POINT 2

業務現場にAIアシスタントを

厨房の業務全体を見通し、調理現場に

スマートなアシスタントを実現

厨房の業務全体を見通し、調理現場にスマートなアシスタントを実現

POINT 3

設計・機器選定・導入支援

これまで数多くの調理現場を改善したプロが衛生的かつ効率的な機器の導入を支援

分析結果から現場を改善

POINT 4

お客様に喜んで頂ける厨房へ

「導入だけで終わらない」

伴走支援型の厨房管理システム

「導入だけで終わらない」伴走支援型の厨房管理システム

厨房のスマートアシスタント

-kitche@-(キッチア)

AI Solution Services

Model H

Heat Map

厨房内の動線および状態をカメラにて計測し、ヒートマップを作成します。

可視化することで無駄な動きが減り、同じ人数でもより多くの作業を処理可能になります。

汚染リスクを減らし、HACCP対応や保健所チェックにも対応できる厨房を設計しやすいという利点もございます。

Model W

Wash

厨房内のカメラから手洗いを検知し、衛生管理に基づいた手洗いが実施できているかチェックを行います。

手洗いの検査結果に応じて、メールでスコアを送信することで管理者の衛生管理の負担を軽減することが可能です。

Model C

Crowded

料理のご提供時間、混雑状況をシミュレーションし、「時間」「混雑」の分析を行います。

動線を分析することで、渋滞の原因が分かりスムーズな提供を行うにはどこを改善すればよいかが可視化できます。

渋滞の緩和を行うことが、現場の効率化と収益性の向上につながります。

Model L

Lens

カメラで厨房機器を撮影することで、厨房機器の名称やマニュアルを表示できます。

機器統一やメンテナンスにも便利です。

Model T

Thermo

音声で中心温度計測データを記録することで、効率的かつ簡単に日々の業務を簡易化できます。

HACCP対応にも取り入れることが可能です。

衛生管理の強化

食品の交差汚染を減らし、HACCP対応や保健所チェックにも対応しやすい。

食品の加熱温度などの記録も効率的に行うことが可能になる。

作業効率向上

調理 → 盛り付け → 提供 → 洗浄 までの流れを整理できる。

移動距離や回り道を減らすことで、調理時間を短縮できる。

効率化により人件費や光熱費の節約にもつながる。

設備レイアウト改善

実際の動線データをもとに機器の配置場所などを合理的に検討できる。

狭い厨房でも、誰がどの動線を使うかが明確になり、混雑や事故を防止できる。

厨房の動線を可視化することは「効率化」「衛生」「安全」「教育」「コスト削減」 のすべてに直結します。

動線を変えれば、

調理の現場が変わる。

現場が変わればお客様への提供も効率的に。

改善の未来がある

見えた動線には

The flow is the future

機器選定~設計まで一貫し、

飲食事業の成長を支援。

最良かつ最適な空間を届ける。

厨房設計のプロがいる

動線を見つめなおす

What the pros see

厨房設計ラボが描く 私たちの目指す姿

厨房にAI導入をご検討の方はこちら

お問合せ

効率だけが全てではない動線から見える未来